大田区大森北1棟マンション!融資相談受付中!中国語&EngOK! 東京都大田区大森北1丁目|-|分譲マンション情報|株式会社リタ不動産

TOPページ >
物件検索 >
-
>
大田区
>
JR京浜東北・根岸線
>
大田区大森北1棟マンション!融資相談受付中!中国語&EngOK!

  • 現地外観写真 -
  •  -

大田区大森北1棟マンション!融資相談受付中!中国語&EngOK!

お気に入り 印刷する

おすすめポイント

★★★オススメポイント★★★★★★★★★★★★★
●最寄り駅徒歩5分!
★★★★★★★★★★★★★★★★★★★★★★★★

【利回り】
●想定利回り5.78%  ●想定年収1850.7万円

【交通】
●京浜東北線「大森」駅徒歩5分
English available

物件概要

種別 -
販売価格 3億2,000万円
利回り 5.78%
満室時想定年収/月収 1,850.7万円 / 154万円
所在地 東京都大田区大森北1丁目周辺の物件を見る
築年月 1985年12月
交通 JR京浜東北・根岸線 大森駅 徒歩5分
京急本線 大森海岸駅 徒歩9分
建ぺい率 80
容積率 500
階数 地上5階建 用途地域 商業地域
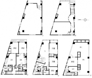
構造 RC造 間取り -
土地面積 104.56m² (31.63坪) 建物面積 -
テラス面積 - 専用庭面積 -
現況 - 引渡し 相談
土地権利 所有権 駐車場/駐輪場 -/-
法令上の制限 - 都市計画 市街化区域
地目 宅地 地勢 平坦
接道状況 接道: 東 6m 公道 道路幅: 12.2m
総戸数 -3 私道負担面積 -
セットバック - 建築確認番号
取引態様 仲介
情報更新日 2026年04月24日 次回更新日 2026年05月25日

※各種情報と差異がある場合は現況優先となります

物件の特徴

同じ価格帯の物件はこちら

お問い合わせ

お名前*

メールアドレス*

※ご記入いただいたメールアドレス宛てに、お問い合わせ内容の確認メールをお送りいたします。
※Yahoo!メールなどのフリーメールをご利用の場合、迷惑メールフォルダに入る場合があります。迷惑メールのフォルダ・設定等をご確認下さい。

電話番号*

FAX番号

ご年収*

自己資金(諸経費含む)*

万円

お問い合わせ内容*

備考欄

詳細な見学ご希望時間、ご質問、ご希望条件などがございましたらお聞かせ下さい。
(2000文字以内)
※ご入力いただいたお客さまの個人情報は、「個人情報のお取り扱いについて」に基づき適正に取り扱います。
必ずお読みになり、同意の上お問い合わせください。

物件番号

260422-ta-1

電話でのお問い合わせ

03-5357-7757

「ホームページを見た」
とお伝え下さい。

  • 物件種別

    -

  • 販売価格

    3億2,000万円

  • 利回り

    5.78%

  • 満室時想定年収/月収

    1,850.7万円 / 154万円

  • 所在地

    東京都大田区大森北1丁目
    周辺の物件を見る

  • 交通

    JR京浜東北・根岸線 大森 徒歩5分
    京急本線 大森海岸 徒歩9分

ライン公式アカウント メンバー限定
株式会社リタ不動産

TEL.03-5357-7757
〒107-0052
東京都港区赤坂3丁目20−6 PACIFIC MARKS赤坂見附4F
【営業時間】9:30〜18:30
【定休日】土・日・祝

キーワード物件検索

Copyright (C) 全国の不動産投資・収益物件は株式会社リタ不動産 All Rights Reserved.