おすすめポイント
★★★オススメポイント★★★★★★★★★★★★★
●最寄り駅徒歩2分!
★★★★★★★★★★★★★★★★★★★★★★★★
【交通】
●JR山手線「上野」駅徒歩5分
●東京メトロ銀座線「稲荷町」駅徒歩2分
English available
| 種別 | 1棟売りビル | ||
|---|---|---|---|
| 販売価格 | 1億7,800万円 | ||
| 利回り | - | ||
| 満室時想定年収/月収 | - / - | ||
| 所在地 | 東京都台東区東上野5丁目周辺の物件を見る | ||
| 築年月 | 1996年3月 | ||
| 交通 | 東京メトロ銀座線 稲荷町駅 徒歩2分
東京メトロ日比谷線 上野駅 徒歩5分 都営大江戸線 新御徒町駅 徒歩8分 |
||
| 建ぺい率 | 80 | ||
| 容積率 | 700 | ||
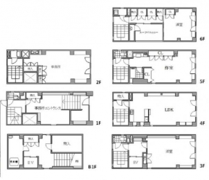
| 階数 | 地上6階 地下1階建 | 用途地域 | - |
| 構造 | SRC造 | 間取り | - |
| 土地面積 | 48.42m² (14.65坪) | 建物面積 | - |
| テラス面積 | - | 専用庭面積 | - |
| 現況 | - | 引渡し | 相談 |
| 土地権利 | (旧法)賃借権 | 駐車場/駐輪場 | -/- |
| 法令上の制限 | - | 都市計画 | 市街化区域 |
| 地目 | 宅地 | 地勢 | |
| 接道状況 | - | ||
| 総戸数 | -3 | 私道負担面積 | - |
| セットバック | - | 建築確認番号 | |
| 取引態様 | 仲介 | ||
| 情報更新日 | 2026年04月17日 | 次回更新日 | 2026年05月18日 |
※各種情報と差異がある場合は現況優先となります
物件の特徴
TEL.03-5357-7757
〒107-0052
東京都港区赤坂3丁目20−6 PACIFIC MARKS赤坂見附4F
【営業時間】9:30〜18:30
【定休日】土・日・祝
キーワード物件検索
Copyright (C) 全国の不動産投資・収益物件は株式会社リタ不動産 All Rights Reserved.