大田区東蒲田1棟マンション!融資相談受付中!中国語&EngOK! 東京都大田区東蒲田2丁目|一棟売りマンション|投資物件や収益物件|株式会社リタ不動産

TOPページ >
物件検索 >
一棟売りマンション
>
大田区
>
京急本線
>
大田区東蒲田1棟マンション!融資相談受付中!中国語&EngOK!

  • 現地外観写真 -
  •  -

大田区東蒲田1棟マンション!融資相談受付中!中国語&EngOK!

お気に入り 印刷する

おすすめポイント

★★★オススメポイント★★★★★★★★★★★★★
●令和8年1月新築!
●最寄り駅徒歩7分!
★★★★★★★★★★★★★★★★★★★★★★★★

【利回り】
●想定利回り4.0%  ●想定年収1989.6万円

【交通】
●京浜急行線「京急蒲田」駅徒歩7分
●JR京浜東北線「蒲田」駅徒歩14分
English available

物件概要

種別 一棟売りマンション
販売価格 4億9,700万円
利回り 4.00%
満室時想定年収/月収 1,989.6万円 / 165万円
所在地 東京都大田区東蒲田2丁目周辺の物件を見る
築年月 -
交通 京急本線 京急蒲田駅 徒歩7分
JR京浜東北・根岸線 蒲田駅 徒歩14分
建ぺい率 -
容積率 -
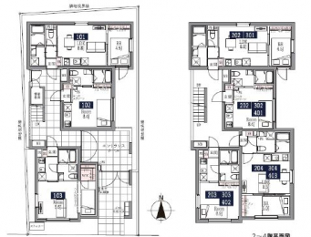
階数 地上4階建 用途地域 -
構造 RC造 間取り 1R -
土地面積 177.57m² (53.71坪) 建物面積 -
テラス面積 - 専用庭面積 -
現況 - 引渡し -
土地権利 - 駐車場/駐輪場 -/-
法令上の制限 - 都市計画 -
地目 - 地勢
接道状況 -
総戸数 14戸3 私道負担面積 -
セットバック - 建築確認番号
取引態様 仲介
情報更新日 2026年01月31日 次回更新日 2026年03月03日

※各種情報と差異がある場合は現況優先となります

物件の特徴

同じ価格帯の物件はこちら

お問い合わせ

お名前*

メールアドレス*

※ご記入いただいたメールアドレス宛てに、お問い合わせ内容の確認メールをお送りいたします。
※Yahoo!メールなどのフリーメールをご利用の場合、迷惑メールフォルダに入る場合があります。迷惑メールのフォルダ・設定等をご確認下さい。

電話番号*

FAX番号

ご年収*

自己資金(諸経費含む)*

万円

お問い合わせ内容*

備考欄

詳細な見学ご希望時間、ご質問、ご希望条件などがございましたらお聞かせ下さい。
(2000文字以内)
※ご入力いただいたお客さまの個人情報は、「個人情報のお取り扱いについて」に基づき適正に取り扱います。
必ずお読みになり、同意の上お問い合わせください。

物件番号

260129-ta-10

電話でのお問い合わせ

03-5357-7757

「ホームページを見た」
とお伝え下さい。

  • 物件種別

    一棟売りマンション

  • 販売価格

    4億9,700万円

  • 利回り

    4.00%

  • 満室時想定年収/月収

    1,989.6万円 / 165万円

  • 所在地

    東京都大田区東蒲田2丁目
    周辺の物件を見る

  • 交通

    京急本線 京急蒲田 徒歩7分
    JR京浜東北・根岸線 蒲田 徒歩14分

ライン公式アカウント メンバー限定
株式会社リタ不動産

TEL.03-5357-7757
〒107-0052
東京都港区赤坂3丁目20−6 PACIFIC MARKS赤坂見附4F
【営業時間】9:30〜18:30
【定休日】土・日・祝

キーワード物件検索

Copyright (C) 全国の不動産投資・収益物件は株式会社リタ不動産 All Rights Reserved.