小山市駅東通り1丁目!融資相談受付中!中国語&EngOK! 栃木県小山市駅東通り1丁目|1棟売りビル|株式会社リタ不動産

TOPページ >
物件検索 >
1棟売りビル
>
小山市
>
JR東北本線
>
小山市駅東通り1丁目!融資相談受付中!中国語&EngOK!

  • 現地外観写真 -
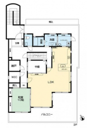
  • 間取り図 -
  •  -
  •  -
  •  -
  •  -
  •  -
  •  -
  •  -
  •  -

小山市駅東通り1丁目!融資相談受付中!中国語&EngOK!利回り8.28%以上

お気に入り 印刷する

おすすめポイント

※占有面積はおおよその値です。
★★★オススメポイント★★★★★★★★★★★★★
利回り8.28%!
駅近10分以内!
★★★★★★★★★★★★★★★★★★★★★★★★
【利回り】
●想定利回り8.28% ●想定年収646万円

【交通】
●JR東北本線 小山駅 徒歩9分
English available

物件概要

種別 1棟売りビル
販売価格 7,800万円
利回り 8.28%
満室時想定年収/月収 646万円 / 53万円
所在地 栃木県小山市駅東通り1丁目周辺の物件を見る
築年月 1997年10月
交通 JR東北本線 小山駅 徒歩9分
建ぺい率 80
容積率 200
階数 地上3階建 用途地域 近隣商業地域
構造 S造 間取り 1R -
土地面積 361m² (109.2坪) 建物面積 -
テラス面積 - 専用庭面積 -
現況 - 引渡し 相談
土地権利 所有権 駐車場/駐輪場 -/-
法令上の制限 - 都市計画 市街化区域
地目 宅地 地勢 平坦
接道状況 接道: 北 公道 道路幅: 6m
総戸数 -3 私道負担面積 -
セットバック - 建築確認番号
取引態様 仲介
情報更新日 2026年03月15日 次回更新日 2026年04月15日

※各種情報と差異がある場合は現況優先となります

物件の特徴

  • BSアンテナ

同じ価格帯の物件はこちら

お問い合わせ

お名前*

メールアドレス*

※ご記入いただいたメールアドレス宛てに、お問い合わせ内容の確認メールをお送りいたします。
※Yahoo!メールなどのフリーメールをご利用の場合、迷惑メールフォルダに入る場合があります。迷惑メールのフォルダ・設定等をご確認下さい。

電話番号*

FAX番号

ご年収*

自己資金(諸経費含む)*

万円

お問い合わせ内容*

備考欄

詳細な見学ご希望時間、ご質問、ご希望条件などがございましたらお聞かせ下さい。
(2000文字以内)
※ご入力いただいたお客さまの個人情報は、「個人情報のお取り扱いについて」に基づき適正に取り扱います。
必ずお読みになり、同意の上お問い合わせください。

物件番号

250313-kudo-4

電話でのお問い合わせ

03-5357-7757

「ホームページを見た」
とお伝え下さい。

  • 物件種別

    1棟売りビル

  • 販売価格

    7,800万円

  • 利回り

    8.28%

  • 満室時想定年収/月収

    646万円 / 53万円

  • 所在地

    栃木県小山市駅東通り1丁目
    周辺の物件を見る

  • 交通

    JR東北本線 小山 徒歩9分

ライン公式アカウント メンバー限定
株式会社リタ不動産

TEL.03-5357-7757
〒107-0052
東京都港区赤坂3丁目20−6 PACIFIC MARKS赤坂見附4F
【営業時間】9:30〜18:30
【定休日】土・日・祝

キーワード物件検索

Copyright (C) 全国の不動産投資・収益物件は株式会社リタ不動産 All Rights Reserved.