中央区新川店舗!融資相談受付中!中国語&EngOK! 東京都中央区新川2丁目|売り店舗・事務所|株式会社リタ不動産

TOPページ >
物件検索 >
売り店舗・事務所
>
中央区
>
東京メトロ日比谷線
>
中央区新川店舗!融資相談受付中!中国語&EngOK!

  • 現地外観写真 -
  •  -

中央区新川店舗!融資相談受付中!中国語&EngOK!

お気に入り 印刷する

おすすめポイント

★★★オススメポイント★★★★★★★★★★★★★
●最寄り駅徒歩5分!
★★★★★★★★★★★★★★★★★★★★★★★★

【交通】
●東京メトロ日比谷・東西線「茅場町」駅徒歩5分
●東京メトロ日比谷・JR京葉線「八丁堀」駅徒歩6分
English available

物件概要

種別 売り店舗・事務所
販売価格 1億7,000万円
利回り -
満室時想定年収/月収 - / -
所在地 東京都中央区新川2丁目周辺の物件を見る
築年月 1989年1月
交通 東京メトロ日比谷線 茅場町駅 徒歩5分
東京メトロ東西線 茅場町駅 徒歩5分
東京メトロ日比谷線 八丁堀駅 徒歩6分
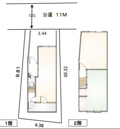
建ぺい率 80
容積率 500
階数 地上2階建 用途地域 -
構造 木造 間取り 2DK -
土地面積 39.27m² (11.88坪) 建物面積 -
テラス面積 - 専用庭面積 -
現況 - 引渡し 即時
土地権利 所有権 駐車場/駐輪場 -/-
法令上の制限 築年月日不明 都市計画 市街化区域
地目 宅地 地勢
接道状況 接道: 東 公道 道路幅: 11m
総戸数 -3 私道負担面積 -
セットバック - 建築確認番号
取引態様 仲介
情報更新日 2026年01月30日 次回更新日 2026年03月02日

※各種情報と差異がある場合は現況優先となります

物件の特徴

同じ価格帯の物件はこちら

お問い合わせ

お名前*

メールアドレス*

※ご記入いただいたメールアドレス宛てに、お問い合わせ内容の確認メールをお送りいたします。
※Yahoo!メールなどのフリーメールをご利用の場合、迷惑メールフォルダに入る場合があります。迷惑メールのフォルダ・設定等をご確認下さい。

電話番号*

FAX番号

ご年収*

自己資金(諸経費含む)*

万円

お問い合わせ内容*

備考欄

詳細な見学ご希望時間、ご質問、ご希望条件などがございましたらお聞かせ下さい。
(2000文字以内)
※ご入力いただいたお客さまの個人情報は、「個人情報のお取り扱いについて」に基づき適正に取り扱います。
必ずお読みになり、同意の上お問い合わせください。

物件番号

260128-ta-6

電話でのお問い合わせ

03-5357-7757

「ホームページを見た」
とお伝え下さい。

  • 物件種別

    売り店舗・事務所

  • 販売価格

    1億7,000万円

  • 利回り

    -

  • 満室時想定年収/月収

    - / -

  • 所在地

    東京都中央区新川2丁目
    周辺の物件を見る

  • 交通

    東京メトロ日比谷線 茅場町 徒歩5分
    東京メトロ東西線 茅場町 徒歩5分
    東京メトロ日比谷線 八丁堀 徒歩6分

ライン公式アカウント メンバー限定
株式会社リタ不動産

TEL.03-5357-7757
〒107-0052
東京都港区赤坂3丁目20−6 PACIFIC MARKS赤坂見附4F
【営業時間】9:30〜18:30
【定休日】土・日・祝

キーワード物件検索

Copyright (C) 全国の不動産投資・収益物件は株式会社リタ不動産 All Rights Reserved.