金沢市1棟マンション!融資相談受付中!中国語&EngOK! 石川県金沢市若松町南|一棟売りマンション|投資物件や収益物件|株式会社リタ不動産

TOPページ >
物件検索 >
一棟売りマンション
>
金沢市
>
JR北陸新幹線
>
金沢市1棟マンション!融資相談受付中!中国語&EngOK!

  • 現地外観写真 -
  •  -

金沢市1棟マンション!融資相談受付中!中国語&EngOK!利回り8.27%以上

お気に入り 印刷する

おすすめポイント

※占有面積はおおよその値です。
★★★オススメポイント★★★★★★★★★★★★★
●利回り9.27%!
★★★★★★★★★★★★★★★★★★★★★★★★

【利回り】
●想定利回り9.27%  ●想定年収1125.6万円

【交通】
●JR北陸新幹「金沢」駅徒歩74分
English available

物件概要

種別 一棟売りマンション
販売価格 1億2,140万円
利回り 9.27%
満室時想定年収/月収 1,125.6万円 / 93万円
所在地 石川県金沢市若松町南周辺の物件を見る
築年月 1995年9月
交通 JR北陸新幹線 金沢駅 徒歩74分
建ぺい率 60
容積率 200
階数 地上4階建 用途地域 第一種中高層住居専用地域
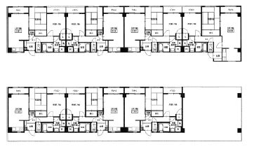
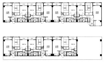
構造 S造 間取り -
土地面積 739.53m² (223.71坪) 建物面積 -
テラス面積 - 専用庭面積 -
現況 - 引渡し 即時
土地権利 所有権 駐車場/駐輪場 -/-
法令上の制限 - 都市計画 市街化区域
地目 宅地 地勢 平坦
接道状況 接道: 北 43m 公道 道路幅: 5.1m
総戸数 15戸3 私道負担面積 -
セットバック - 建築確認番号
取引態様 仲介
情報更新日 2025年10月13日 次回更新日 2025年11月13日

※各種情報と差異がある場合は現況優先となります

物件の特徴

同じ価格帯の物件はこちら

お問い合わせ

お名前*

メールアドレス*

※ご記入いただいたメールアドレス宛てに、お問い合わせ内容の確認メールをお送りいたします。
※Yahoo!メールなどのフリーメールをご利用の場合、迷惑メールフォルダに入る場合があります。迷惑メールのフォルダ・設定等をご確認下さい。

電話番号*

FAX番号

ご年収*

自己資金(諸経費含む)*

万円

お問い合わせ内容*

備考欄

詳細な見学ご希望時間、ご質問、ご希望条件などがございましたらお聞かせ下さい。
(2000文字以内)
※ご入力いただいたお客さまの個人情報は、「個人情報のお取り扱いについて」に基づき適正に取り扱います。
必ずお読みになり、同意の上お問い合わせください。

物件番号

251011-ta-2

電話でのお問い合わせ

03-5357-7757

「ホームページを見た」
とお伝え下さい。

  • 物件種別

    一棟売りマンション

  • 販売価格

    1億2,140万円

  • 利回り

    9.27%

  • 満室時想定年収/月収

    1,125.6万円 / 93万円

  • 所在地

    石川県金沢市若松町南
    周辺の物件を見る

  • 交通

    JR北陸新幹線 金沢 徒歩74分

ライン公式アカウント メンバー限定
株式会社リタ不動産

TEL.03-5357-7757
〒107-0052
東京都港区赤坂3丁目20−6 PACIFIC MARKS赤坂見附4F
【営業時間】9:30〜18:30
【定休日】土・日・祝

キーワード物件検索

Copyright (C) 全国の不動産投資・収益物件は株式会社リタ不動産 All Rights Reserved.